Total :
0,00 € HT

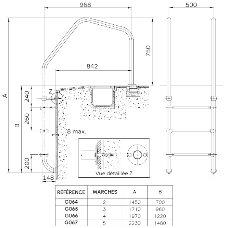
Échelle modèle 1000 pour goulotte à débordement Ø 43

Échelle spécialement conçue pour faciliter l'accès aux piscines à débordement. Conception sécurisée évitant les glissades et les coupures.
Structure tubulaire de Ø 43 mm en inox finition poli brillant. Marches en inox, dont 1 de sécurité, avec surface antidérapante.

Attention : incompatible avec les eaux traitées par électrolyse au sel et mise à la terre nécessaire pour éviter les risques d'électrocution.

· Matière : inox 316L
· Dimensions : voir dessin technique
· Conditionnement : au détail
· Normes : EN-13451-1, EN13451-2, EN 16582-1
· Garantie : 2 ans pour une utilisation conforme
· Informations complémentaires : ancrages inclus, charge maximale 150 kg

Découvrez nos autres produits :

Ce site web utilise des cookies.
Les cookies nous permettent de personnaliser le contenu et les annonces, d'offrir des fonctionnalités relatives aux médias sociaux et d'analyser notre trafic.
Vous pouvez accepter ou refuser tout ou partie des cookies.
Accepter Modifier Refuser et continuer